Логотип ВудПлэйс: строительство деревянных домов
О нас
История
Производство
Видео
Партнеры
Проектное бюро
Полезное
Способы оплаты
Дилерам
Дома и бани
Проекты домов из бруса
Каркасные дома
Клееный брус
Дома по 240-му указу
Двойной брус
Бани
Деревянные бани
Классические бани из бруса
Финские перевозные бани
Работы под ключ
Дома под ключ
Бетонные работы
Монтаж срубов
Кровельные работы
Отделка домов и бань
Установка окон и дверей
Заборы
Сантехнические работы
Электрика
Наши работы
Фотоотчеты дома из бруса
Фотоотчеты каркасные дома
Отзывы
Контакты
Оплатить заказ
+375 29 8888-140 (viber/mts)
Оплатить заказ
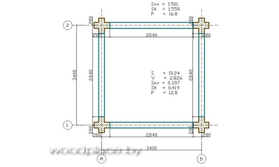
Arbour 1
JavaScript is currently disabled.
Please enable it for a better experience of
Jumi
.