Мы разработали много проектов деревянных домов. На сайте приведены проекты деревянных домов. Вы можете выбрать готовое решение и купить сруб уже спроектированного дома.
Готовый проект позволит сэкономить время на планирование: аналогичный дом уже построен, имеются все необходимые для начала работы расчёты и чертежи, функциональность и надежность сборки проверены. При необходимости в существующий вариант могут быть внесены корректировки. Вы можете заказать проект деревянного дома по Вашим наброскам, рисункам. Такой дом будет учитывать все Ваши пожелания и отвечать необходимым требованиям. Строительство может вестись по предоставленному Вами проекту. Независимо от того, готовый Вы выберите проект или он будет составлен исключительно для Вас, все построенные нами дома отличаются высоким качеством, функциональностью и умеренными ценами.
Проект деревянного дома включает:
- Архитектурную часть(общие проектные данные, поэтажные чертежи, фасады, основные разрезы). При необходимости дополнительно может быть предоставлен:
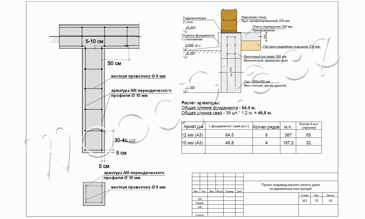
- Конструкторская часть (планы междуэтажных перекрытий, план конструкции стропил, конструктивные узлы, технология фундамента, спецификации на материалы).
- Инженерная часть (канализация, вентиляция, водоснабжение, план электромонтажа, проект отопительной системы).
При заказе готового сруба или строительства дома в нашей компании эскизный проект разрабатывается БЕСПЛАТНО!
Мы самостоятельно заготавливаем лес, обрабатываем древесину и производим брус. Под заказ мы можем изготовить сруб любого размера и сложности.




