Проект каркасного дома "Лексус"

Этот дом можно купить в беспроцентную рассрочку!

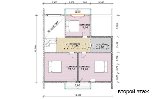
Общая S=175 м2
Жилая S=104 м2

Комплектация каркасного дома:

Фундамент:

  • Свайно-ростверковый, бетон М300, арматура D12
  • Столбчатый из асбестоцементных труб с пяткой тисе, бетон М300, арматура D12
  • Фундамент свайно-ростверковый с плитой: бетон М300, арматура D12.

Цокольное перекрытие:

  • Обвязочный брус 80х200 (сосна, сорт АВ, клееный, обработанный антисептиком Lingofix)
  • Силовой каркас 40х200 (сосна, сорт АВ, клееный, обработанный антисептиком Lingofix)
  • OSB-3 плита 2800х1250х12, обработанная акриловой краской ОЛИМП OSB Paint.
  • Основной слой утеплителя URSA terra pn34 pro 200мм между элементами основного каркаса
  • Пароизоляционная пленка Delta Dawi-GP
  • Черновой пол 40х90 (сосна, тех.сушка, сорт АВ, строганая, обработанный антисептиком Lingofix)
  • Половая доска 35х90 (сосна, сорт А, клееная, строганая, обработанная антисептиком Lingofix)

Наружные стены:

Наружная отделка дома:

    • Доска-хаус 40х162 (сосна, сорт А, клееный, строганая, обработанная антисептиком Lingofix) окрашенная краской osmo
    • Доска 40х90 (сосна, тех.сушка, сорт АВ, строганая, обработанный антисептиком Lingofix) – обрешетка для доски-хаус.
    • Евровагонка 14х80 (сосна, сорт А, клееный, строганая, обработанная антисептиком Lingofix) окрашенная краской osmo
    • Планкен 14х80 (сосна, сорт А, клееный, строганый, обработанный антисептиком Lingofix) окрашенный краской osmo
    • Рейка 20х40 (сосна, тех.сушка, сорт АВ, строганая, обработанная антисептиком Lingofix) – обрешетка для евровагонки и планкена.

  • Фасадный утеплитель под штукатурку Paroc Linio 15 + декоративная штукатурка.
  • OSB-3 2800х1250х12, обработанная акриловой краской ОЛИМП OSB Paint
  • Силовой каркас 40х200 (сосна, сорт АВ, клееный, обработанный антисептиком Lingofix)
  • Основной слой утеплителя URSA terra pn34 pro 200мм между элементами основного каркаса
  • Пароизоляционная пленка Delta Dawi-GP

Внутренняя отделка дома:

    • Доска-хаус 40х162 (сосна, сорт А, клееный, строганая, обработанная антисептиком Lingofix) окрашенная краской vidaron
    • Доска 40х90 (сосна, тех.сушка, сорт АВ, строганая, обработанный антисептиком Lingofix) – обрешетка для доски-хаус.
    • Евровагонка 14х80 (сосна, сорт А, клееный, строганая, обработанная антисептиком Lingofix) окрашенная краской vidaron
    • брусок 40х40 (сосна, тех.сушка, сорт АВ, строган., обработанный антисептиком Lingofix) – обрешетка для евровагонки
    • Гипсокартон 2500х1200х12, подготовка поверхности под покраску или поклейку обоев.

Внутренние перегородки:

Отделка внутренних перегородок:

    • Доска-хаус 40х162 (сосна, сорт А, клееный, строганая, обработанная антисептиком Lingofix) окрашенная краской vidaron
    • Доска 40х90 (сосна, тех.сушка, сорт АВ, строганая, обработанный антисептиком Lingofix) – обрешетка для доски-хаус.
    • Евровагонка 14х80 (сосна, сорт А, клееный, строганая, обработанная антисептиком Lingofix) окрашенная краской vidaron
    • брусок 40х40 (сосна, тех.сушка, сорт АВ, строган., обработанный антисептиком Lingofix) – обрешетка для евровагонки
    • Гипсокартон 2500х1200х12, подготовка поверхности под покраску или поклейку обоев.

  • OSB-3 2800х1250х12, обработанная акриловой краской ОЛИМП OSB Paint.
  • Силовой каркас 40х95 (сосна, сорт АВ, клееный, обработанный антисептиком Lingofix)
  • Основной слой утеплителя URSA terra pn34 pro 100мм между элементами основного каркаса

Межэтажное перекрытие:

Отделка потолка:

    • Евровагонка 14х80 (сосна, сорт А, клееный, строганая, обработанная антисептиком Lingofix) окрашенная краской vidaron
    • брусок 40х40 (сосна, тех.сушка, сорт АВ, строган., обработанный антисептиком Lingofix) – обрешетка для евровагонки
    • Гипсокартон 2500х1200х12, подготовка поверхности под покраску.

  • OSB-3 2800х1250х12, обработанная акриловой краской ОЛИМП OSB Paint.
  • Силовой каркас 40х200 (сосна, сорт АВ, клееный, обработанный антисептиком Lingofix)
  • Основной слой утеплителя URSA terra pn34 pro 200мм между элементами основного каркаса
  • Черновой пол 40х90 (сосна, тех.сушка, сорт АВ, строганая, обработанный антисептиком Lingofix)
  • Половая доска 35х90 (сосна, сорт А, клееная, строганая, обработанная антисептиком Lingofix)

Кровля:

Отделка потолка:

    • Евровагонка 14х80 (сосна, сорт А, клееный, строганая, обработанная антисептиком Lingofix) окрашенная краской vidaron
    • брусок 40х40 (сосна, тех.сушка, сорт АВ, строган., обработанный антисептиком Lingofix) – обрешетка для евровагонки
    • Гипсокартон 2500х1200х12, подготовка поверхности под покраску.

  • Пароизоляционная пленка Delta Dawi-GP
  • Стропильная балка 40х200 (сосна, сорт А, клееный, обработанный антисептиком Lingofix) – под гибкую черепицу
  • Стропильная балка 80х200 (сосна, сорт А, клееный, обработанный антисептиком Lingofix) – под цементно-песчаную черепицу
  • Основной слой утеплителя URSA terra pn34 pro 200мм между элементами основного каркаса
  • Диффузионная мембрана DELTA Vent-N
  • Контррейка 40х40 (сосна, тех.сушка, сорт АВ, строган., обработанный антисептиком Lingofix)
  • Обрешетка 20х90 (сосна, тех.сушка, сорт АВ, строган., обработанный антисептиком Lingofix)

Кровельный материал:

  • Гибкая черепица, Технониколь, Финская, однослойная
  • Гибкая черепица, Технониколь SHINGLAS, многослойная
  • Цементно-песчаная черепица Забудова